J'ai donné en 2017 des cours de menuiserie à la Fundación "Minuano*Puede" en Uruguay. Nous nous sommes fixés comme but de fabriquer un coffre que les stagiaires peuvent facilement faire.
Ce fut toutefois un projet assez compliqué mais comme nous avons fait des multiples exercices au-paravent, j'ai pensé que les stagiaires pourraient facilement accomplir cette tâche.
Mais l'exercice était passablement difficile et j'ai dû intervenir plus souvent que je le pensais car les stagiaires n'étaient pas à même d'avoir la précision nécessaire pour mener à bien cet exercice.
Mais malgré tout, nous avons pu mener à bout la construction de ce meuble et même lui donner une belle finition avec du vernis et de la cire.

La Fundacion "Minuano*Puede" organise chaque année pendant l'été Uruguayen, des cours de menuiserie pour les jeunes tout juste sortis de l'école obligatoire avant leur entre à la UTU - Universidad du Travail del Uruguay - pour les familiariser aux métiers du bois.
Nous remercions la Fundacion pour cette opportunité qu'elle nous donne pour faire quelque chose de très constructive pour les jeunes.
Ces cours ont duré du lundi 6 Février au lundi 6 Mars de 09h00 à 12h00 et étaient ouverts à tous les jeunes stagiaires.
L'inscription était ouverte au "Centro de Turismo Minuano" à Juan Lacaze.
Nous avons eu un bien joli groupe de jeunes, tous et toutes aussi enthousiastes les unes que les autres. Non seulement, ils ont appris individuellement le métier de menuisier mais aussi à travailler en équipe en collaborant parmi. Ainsi ils et elles ont pu se préparer pour entrer dans leur "UTU" et seront déjà familiarisés avec les quelques "trucs" du métier.
En español para los Uruguayos...
La Fundación "Minuano*Puede" organiza cada año durante el verano uruguayo cursos de carpintería para jóvenes que acaban de terminar la escuela obligatoria antes de ingresar a la UTU - Universidad del Trabajo del Uruguay - para familiarizarlos con los oficios de la carpintería.
Estos cursos han durados del lunes 6 de febrero al lunes 6 de marzo de 9h00 a 12h00 para todos los jóvenes en formación...
La inscripción estaba abierta en el "Centro de Turismo Minuano" en Juan Lacaze...
Après deux semaines de travail de nettoyage acharné, l'atelier tourne enfin...
Il y avait d'abord à réduire les tonnes de bois entreposées à qui mieux-mieux dans tous les coins disponibles, des vieux meubles tous cassés au milieu du passage, des rouleaux d'isolation empilés à la va-vite, des brouettes entières de poussière, de feuilles morts et d'autres détritus dont des cadavres d'oiseaux morts. Il fallait fermer les fenêtres avec des plaques de plastique ondulé translucides, nettoyer le canal d'évacuation de l'eau devant l'atelier, réparer de fond en comble la raboteuse, la meule pour aiguiser les fers de rabots et autres ciseaux, réparer les rabots à main et affûter les ciseaux à bois qui étaient tous rouillés.
L'ordre a enfin été établi grâce à l'aide de deux charmantes jeunes filles enthousiastes et nous avons pu enfin commencer ces cours avec deux ou trois exercices pour les rafraîchir la mémoire.
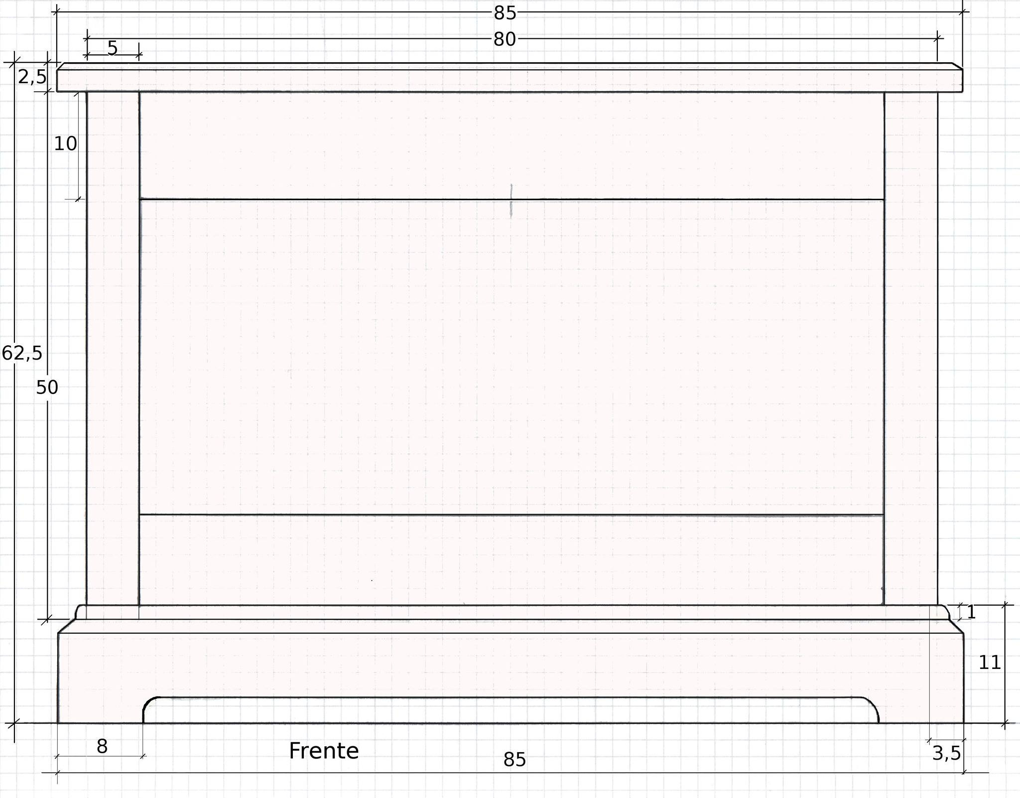
Sur ce, la construction de ce petit coffre tant attendu a enfin démarré. À tour de rôle, un après l'autre, un-e stagiaire sciait pendant que les autres vérifiaient que la scie était bien perpendiculaire, qu'elle suivait les traits des deux côtés. Les stagiaires se sont débrouillés comme des chefs, la coupe étant très nette... et on a pu voir que la marque des dents de scie ne se voit presque pas.
Pendant ce temps, ceux et celles qui n'avaient pas suivi ces cours la dernière fois en 2016, ont fait un exercice d'assemblage avec tenon et mortaise, plus difficile qu'il en a l'aire.
Enfin, le travail sur le coffre lui-même a démarré... débitage et rabotage des diverses pièces du coffre, fabrication des assemblages et surtout, tout un cours sur comment tracer les mortaises et autres tenons sur les pièces elles-mêmes...
©GPT
massive !Après le coffre... une porte d'entrée !
On nous a demandé de remplacer la vieille porte coulissante en métal de l'entrée de la Fundación, impossible de faire glisser, par une nouvelle en bois massif et panneaux multi-pli et cela en seulement quatre jours. Au début, nous ne l'avons pas cru très possible mais nous y sommes mis avec notre ferveur habituelle et le résultat fut au-delà de toutes nos espérances et à la surprise générale...!!
Nous avons commencé par aller chercher le bois dans tous nos dépôts, le couper en longueur appropriée, tracer les pièces à l'atelier, les travailler, les raboter et faire les assemblages...!
![]() |
![]() |
![]() |
![]() |
Ça rentre au millimètre près...!!! |
![]() |
![]() |
![]() Une porte qui "swing"...!!! |
- - - - - - - - - - - - - - - - - - - - - - - | |
![]() Un très beau travail d'équipe...!! | |
©GPT
Nous avons eu des très beaux moments où nous avons pu faire de ces cours un moment d'intense communication entre nous tous, stagiaires, responsables de stage, ouvriers, parents et autres participants.
Les autres moments riches en émotions furent les "tormentas", les fins d'après-midi sur la plage de Santa Ana et les moments au calme dans la petite cabane dans la "Pampa". La "despedida" fut aussi un moment très émotionnel où nos relations se renforcent !
©GPT
|
Ma page "FaceBook" - où on peut suivre mon aventure !
La Fundación - "Minuano*Puede" !
Minuano - localisation
Marino Giúdice - La madera para el taller y sus instalaciónes
Patty Raffo Laport - fondatrice et animatrice passionnée - (décédée le 17 janvier 2012)
TECNOAMBIENTE SRL - mentor et pourvoyeur de fonds
Estela Debia - responsable du centre artisanal "Centro del Arte-Sano"
Facundo Nievez - l'ouvrier qui sait tout faire
Estampilles des ébénistes - qui marquaient leurs œuvres d'un signe distinctif
UTU - Université du Travail de l'Uruguay
|
«Nada debemos esperar... sino de nosotros mismos !»
* * * * * * * *
«N'attendez rien des autres mais tout de nous-mêmes !»
* * * * * * * *
«Quien verdaderamente está comprometido con la vida,
Nunca deja de caminar !» El Aleph * * * * * * * *
«Haz lo que puedes y hazlo con todas sus fuerzas, su perseverancia y su atención comprometido, como si su vida dependiera !» GPT
* * * * * * * *
«Je ne vais pas en Uruguay pour trouver quelque chose
mais parce que je me suis trouvé !» GPT * * * * * * * *
|

Dossier préparés par
©Georges Tafelmacher & SuisseForum